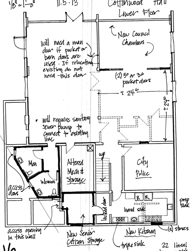
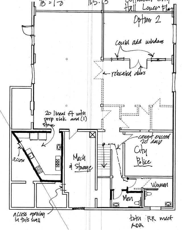
Improvements eyed for Hall basement
The City of Cottonwood is currently looking to improve the Cottonwood Community hall basement. They would like to increase the main room by removing some storage rooms, hallway area and dividing the city council chamber room in half. They would also add a second bathroom so we would have a men’s and women’s bathroom. They also want to increase the size of the kitchen and change the layout.  
If they increase the size of the main room people could rent the basement for the wedding ceremony and rent the upstairs for the reception rather than having two separate locations for the wedding. Another thought was that some of the birthday gatherings are smaller in size and the upstairs is just too big so the basement would be just perfect. Someone else said it would be the perfect place for showers wedding or baby. Other people have suggested that if it were larger and had a nice kitchen that a funeral dinner could be held downstairs on the days that the upstairs is not available. Training could be conducted in the basement rather than the upstairs. Since it is the season maybe you are looking for a place to hold your Christmas party the basement is a great place for a family to gather when it is too large for your house. 
The City is asking for suggestions from the community. The diagrams on this page shows the options take a look at these options and call Shelli Schumacher 208-962-3138 or Carol Altman 208-962-3231 with your thoughts and suggestions.


Above are the two options for the Hall basement remodel. The top one is option 1 while the lower one is of course option 2.


Cottonwood, Idaho 83522
 

Home

Classified Ads
 

COTTONWOOD
CHRONICLE
503 King St.
P.O. Box 157
Cottonwood, ID 83522-0157
editor@cottonwoodchronicle.com
or cotchron@qwestoffice.net
208-962-3851
Fax 208-962-7131
Template Design by: