2016 opening eyed for new BLM offices
The Cottonwood office of the Bureau of Land Management is looking at a new $4 million office building.
It was discovered the current buildings made extensive use of asbestos and remodeling them to get rid of it turned out to be more expensive than a new building. Other options they looked at according to Will Runnoe, was co-habiting with the Forest Service at Grangeville or at Kamiah. The Grangeville office would be closed in 4 years and Kamiah was too far away from most of the BLM lands. Having been a part of Cottonwood for 50 years also figured into the decision to rebuild here.
They also looked into a GSA lease but that would run $350,000-$400,000 per year. With a 30-year life expectancy for their new building, it was more economical to go that route.
The demolition and asbestos management makes up about $750,000 or the $4 million cost.
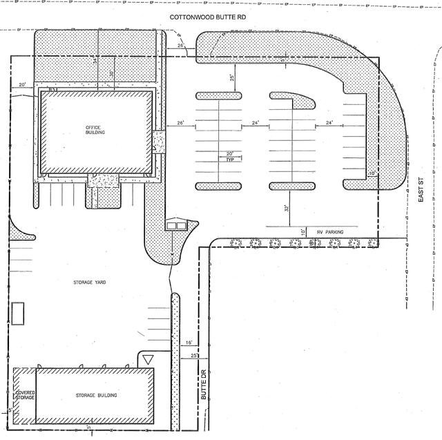
The first stage is to move the employees in the buildings on the west side of Butte Drive to the large main office and temporary office buildings placed in the parking lot behind that main building. The demolition of the west side buildings will start in March 2015. Once they are gone the new building will go up in the upper right section of the lower right photo. It will take 9 months to a year to complete. Once it is completed they will move in and the other buildings will be demolished and turned into a parking lot. A large boat house/warehouse will be located in the southwest portion of the campus. Until that his finished the trucks and equipment will be stored on school property near the Primeland pumps and all the rafts and other equipment will be put into a storage facility.
The new building has a “green” emphasis with extended use of natural light and recycled materials. The employees and local officials had input into the design. River rock will be used on the exterior to reflect the BLM’s purposes.
It will mean a drop in space from about 8500 sq. ft. to 7200 meaning the employees will go from separate offices to cubicles.

The current BLM campus. The buildings are the west side of Butte Dr. (the six brown buildings towards the top plus the two white buildings)will be demolished starting in March, 2015. There will be temporary offices placed east of the large main office building. Those will be used until the new building is finished, c. early 2016, then they will be demolished once they move to the new building and turned into a parking area.

Elevations of the proposed new BLM office in Cottonwood. The top right is the main front entrance as it faces the street. The top left is the side that faces Cottonwood Butte Road. The 7200 sq. ft. building would be a downsize from the current 5 buildings being used that total around 8500 sq. ft.

An architect’s drawing of how the new BLM campus will lay out. North is toward the top of the page.

The floor plan of the new BLM office building. Again north is toward the top of the page. The right hand side is the main entrance. Employees will lose considerably in space going from fairly large offices in the former houses to 8x8 cubicles

Cottonwood, Idaho 83522
 

Home

Classified Ads
 

COTTONWOOD
CHRONICLE
503 King St.
P.O. Box 157
Cottonwood, ID 83522-0157
editor@cottonwoodchronicle.com
or cotchron@qwestoffice.net
208-962-3851
Fax 208-962-7131
Template Design by: